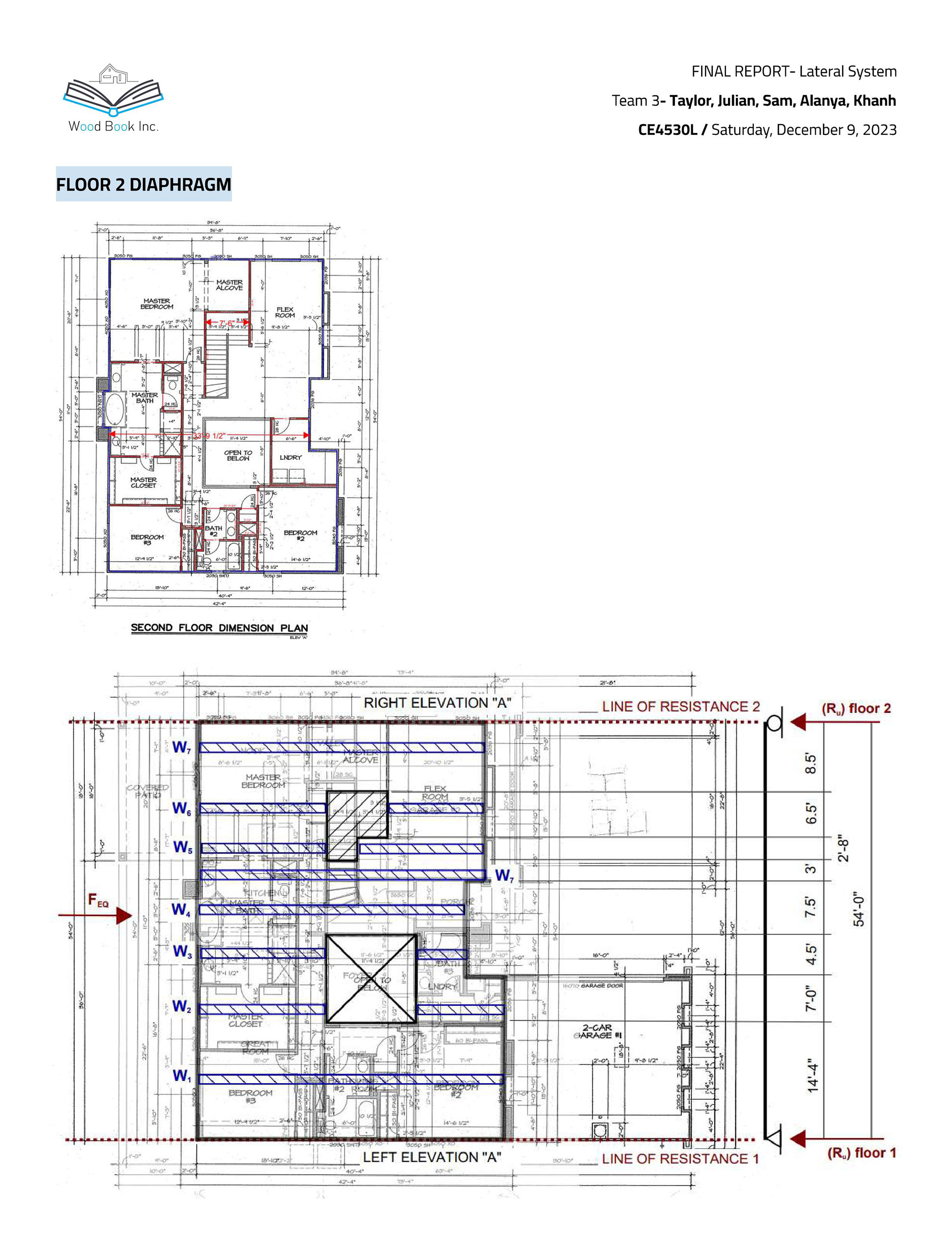
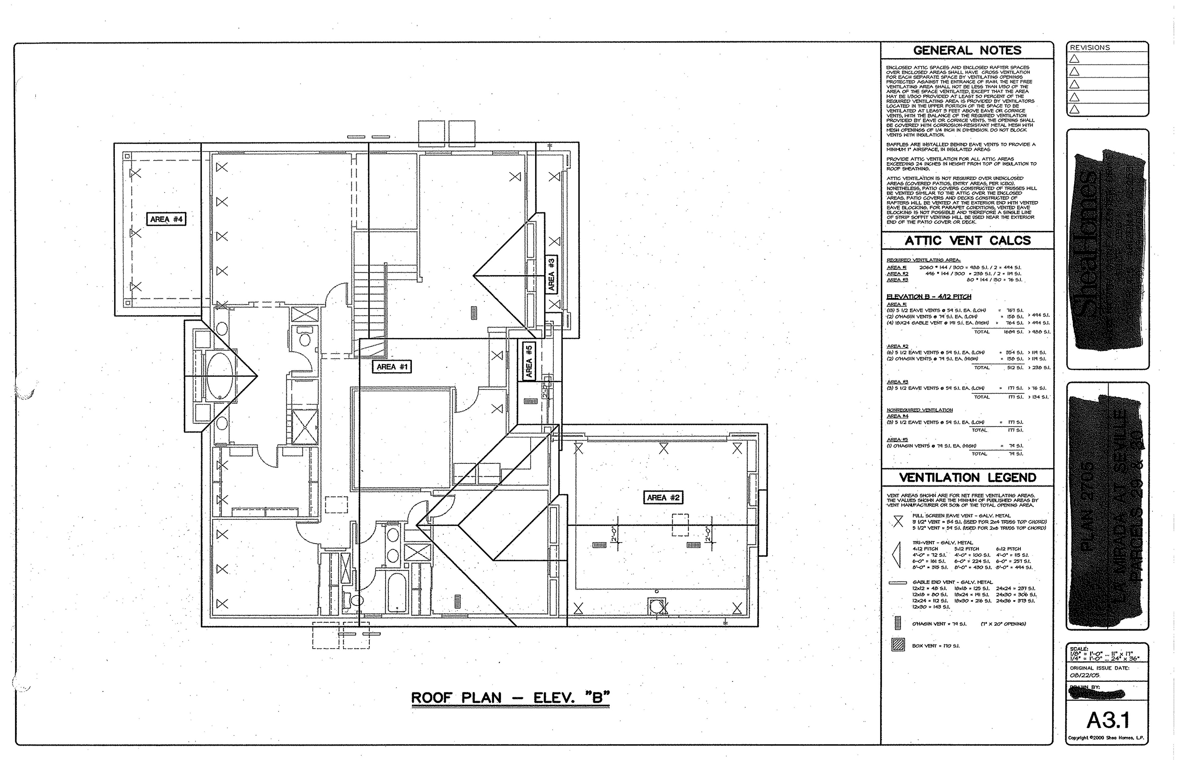
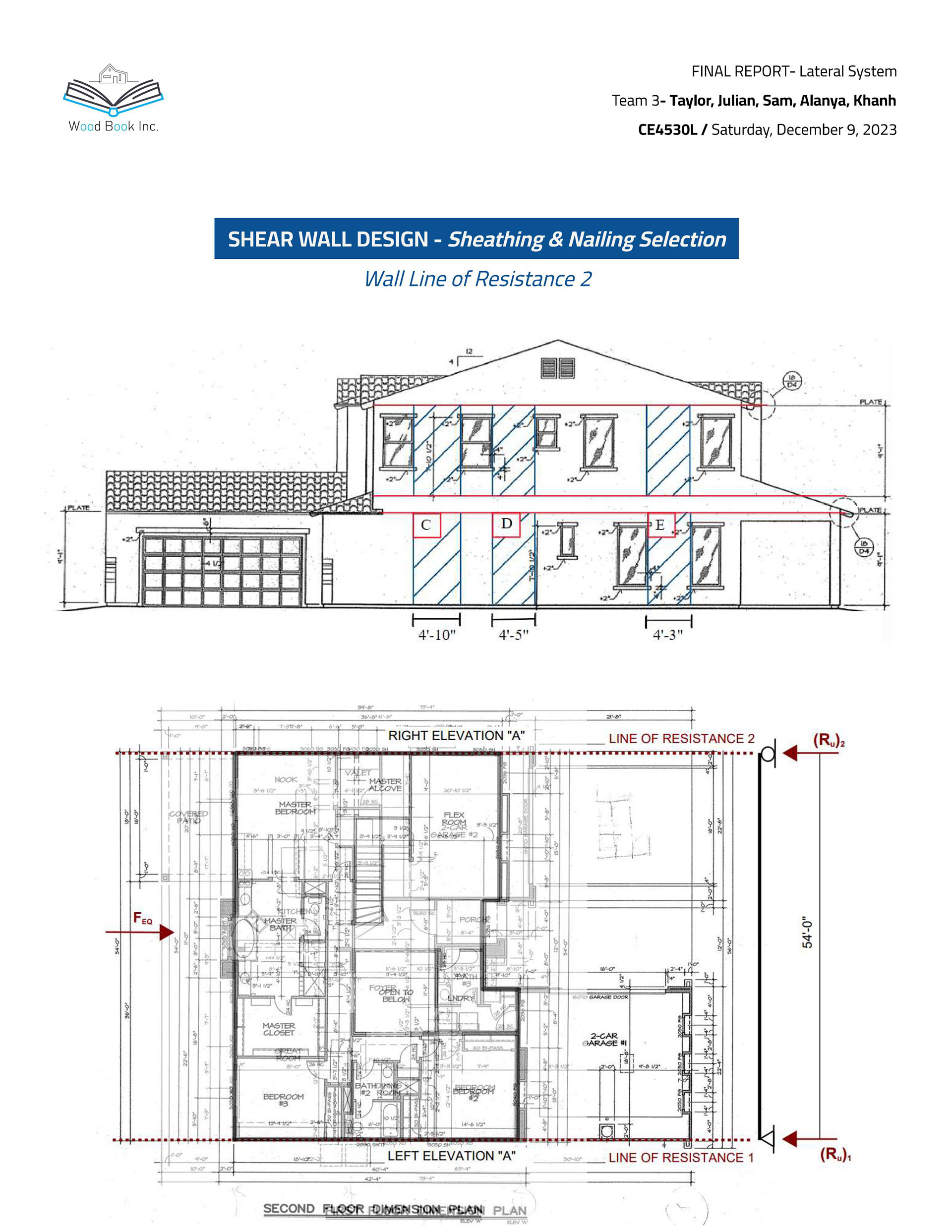
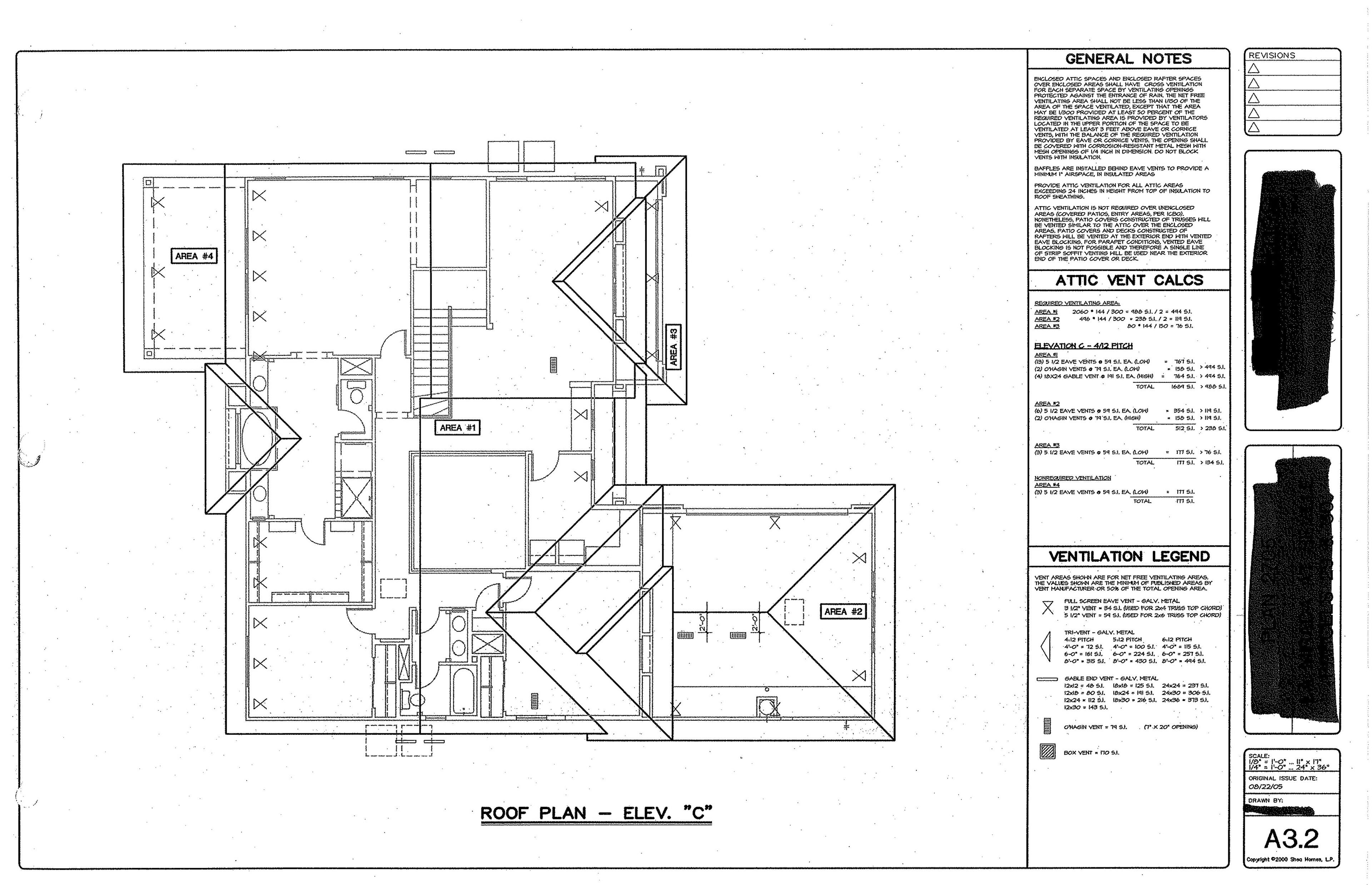
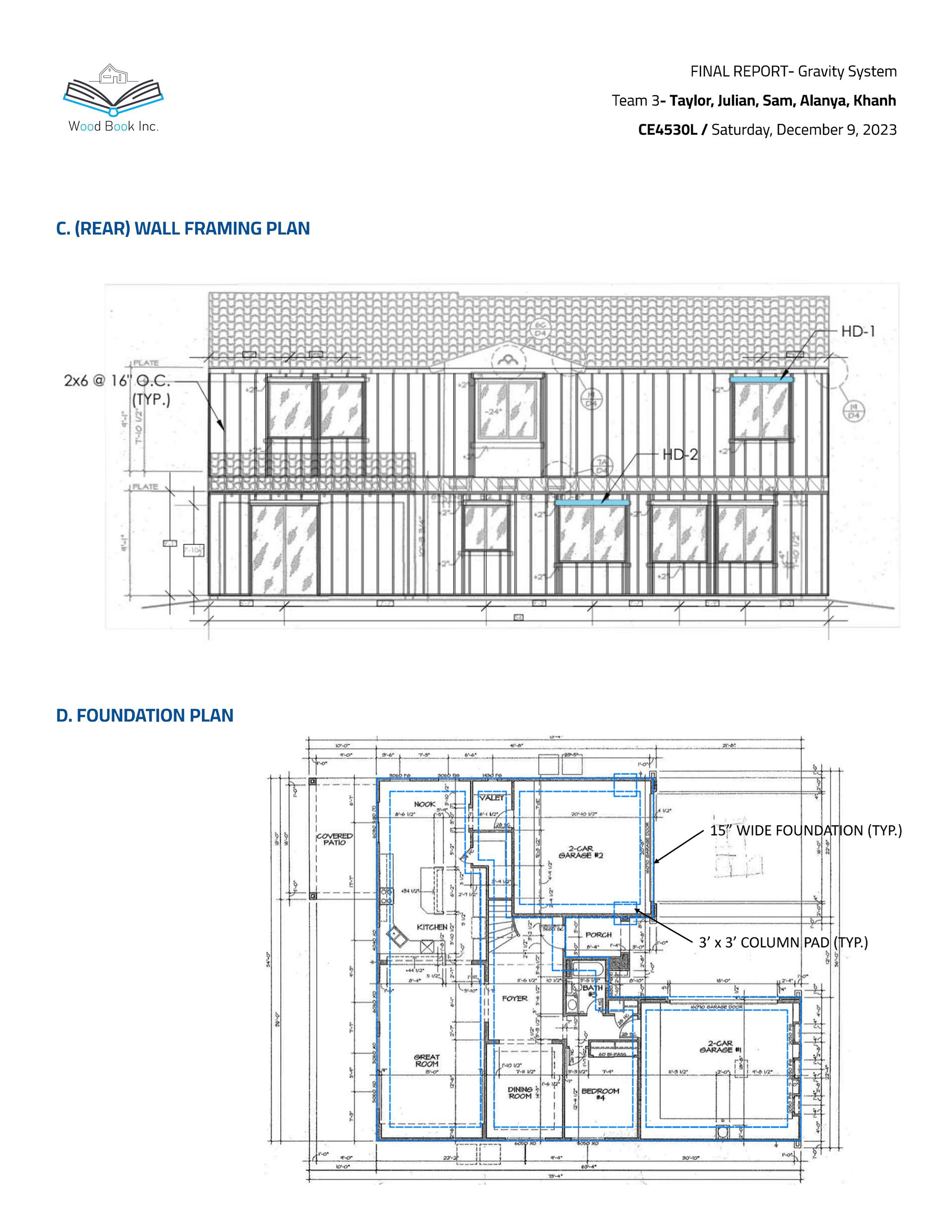
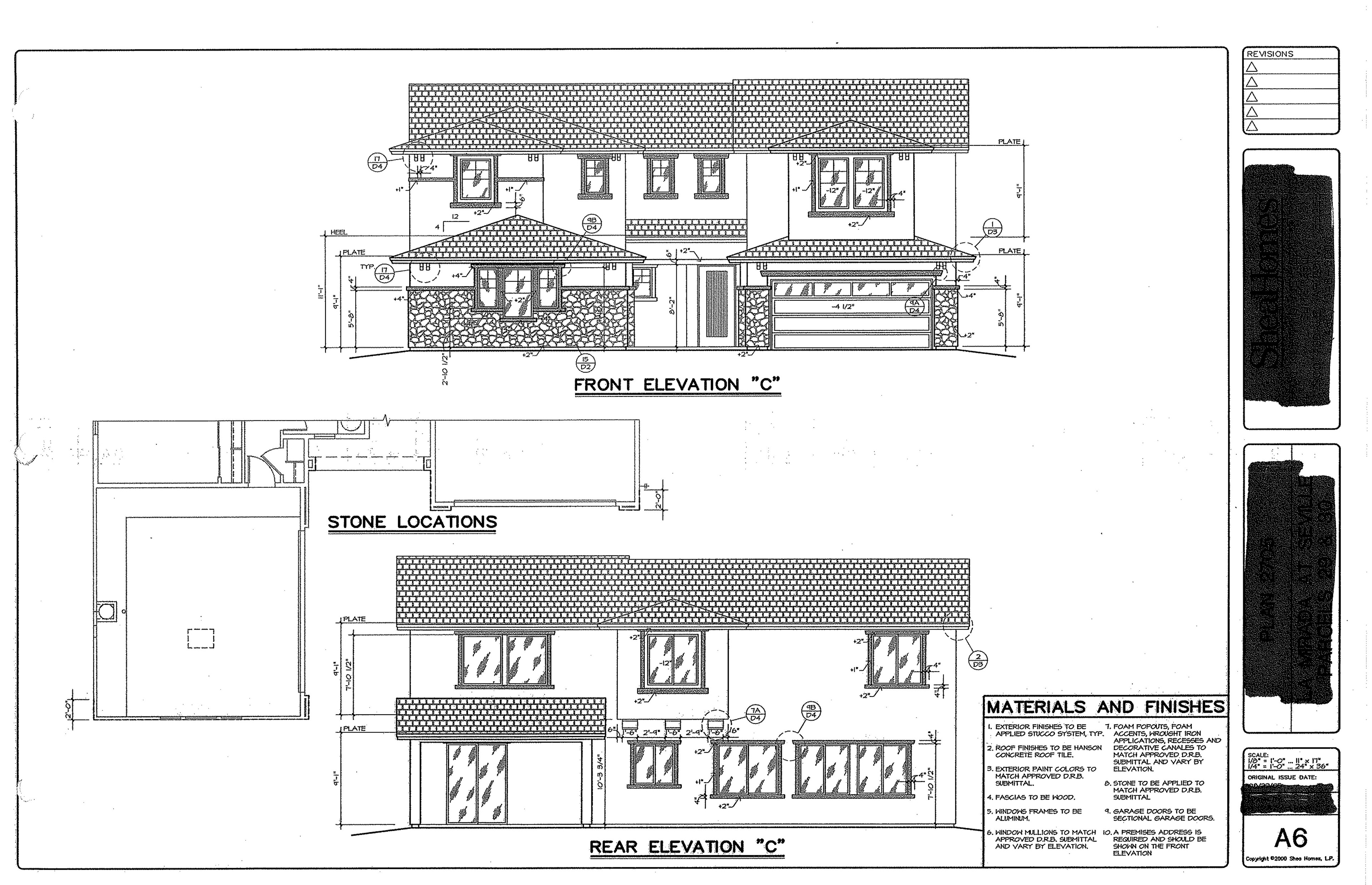
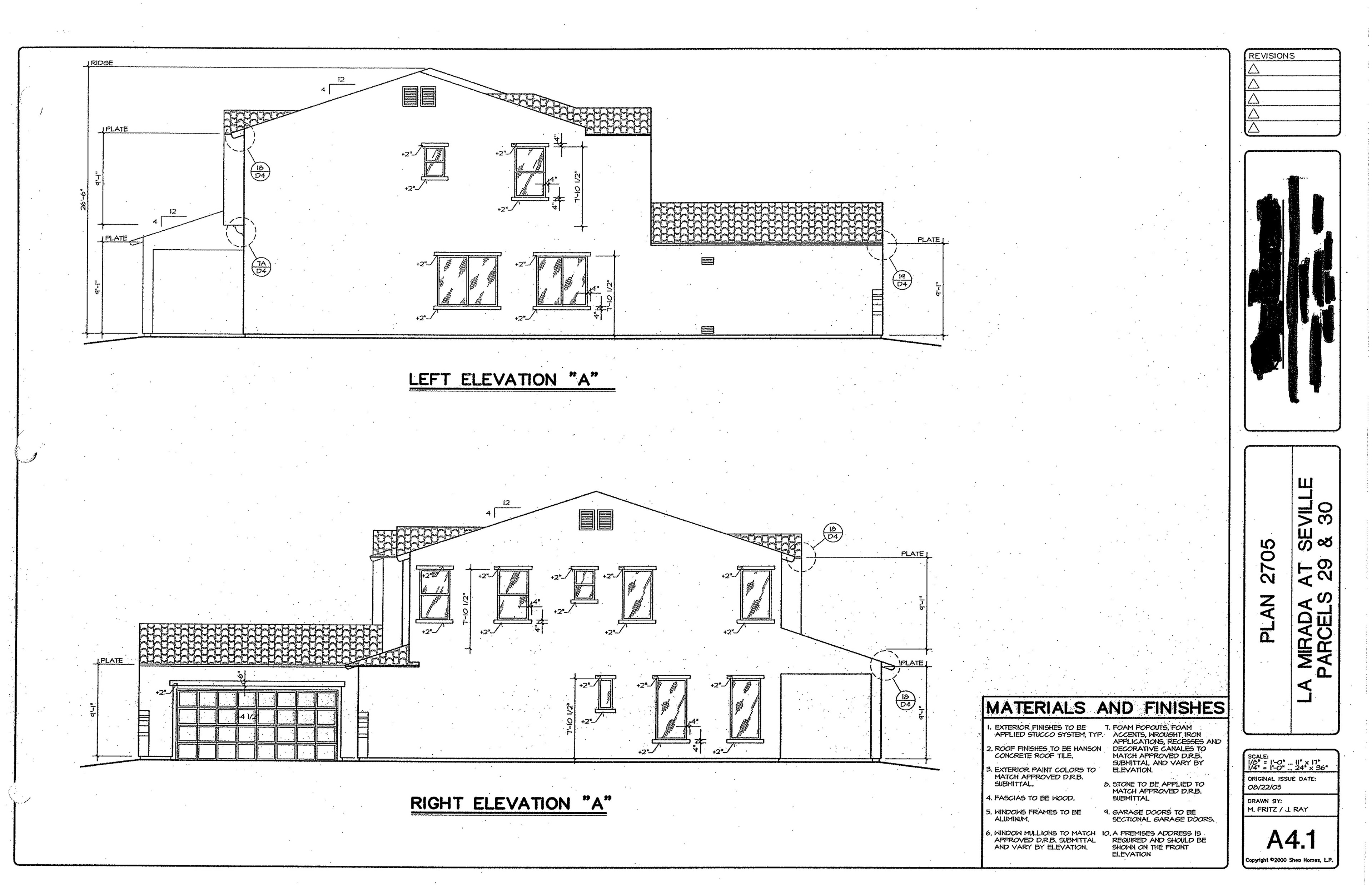
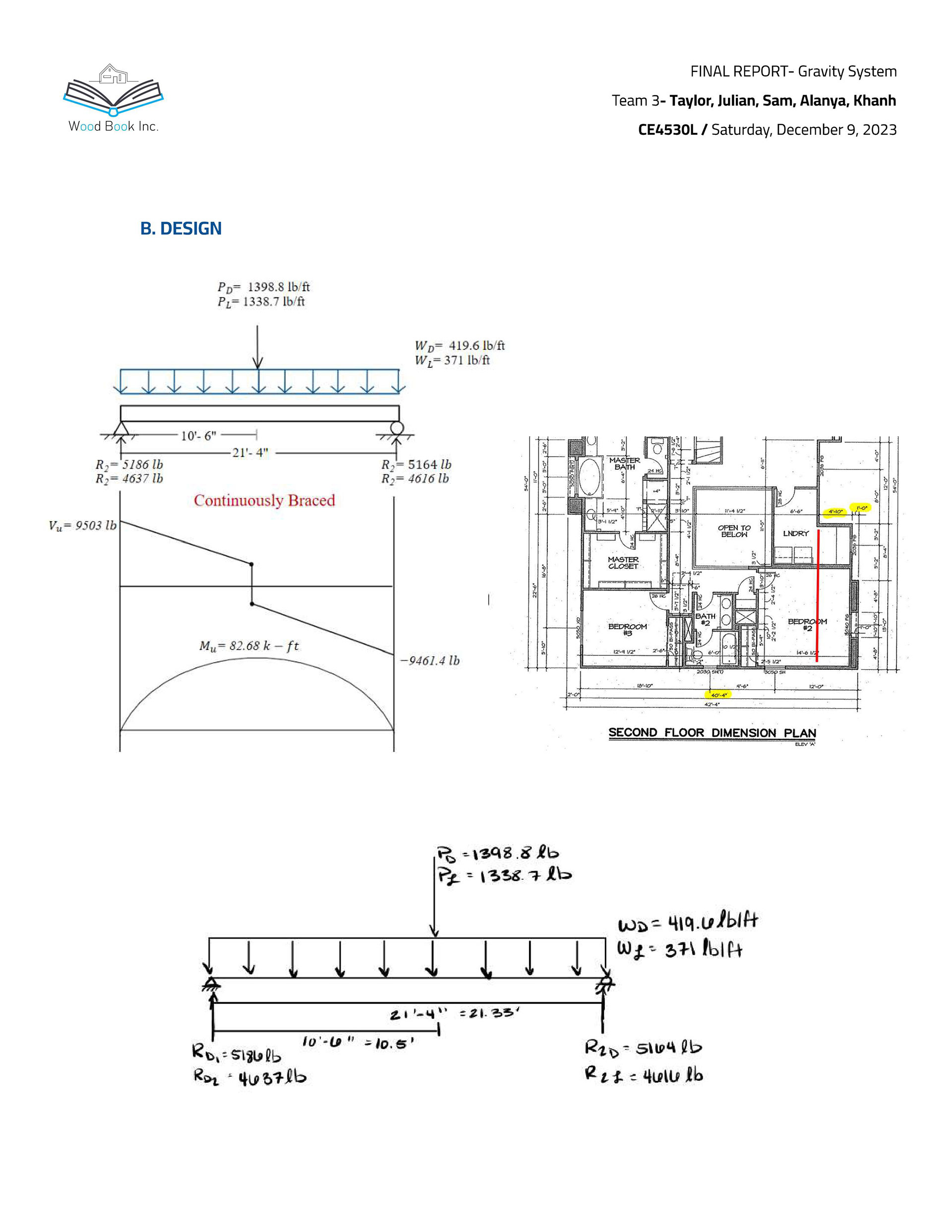
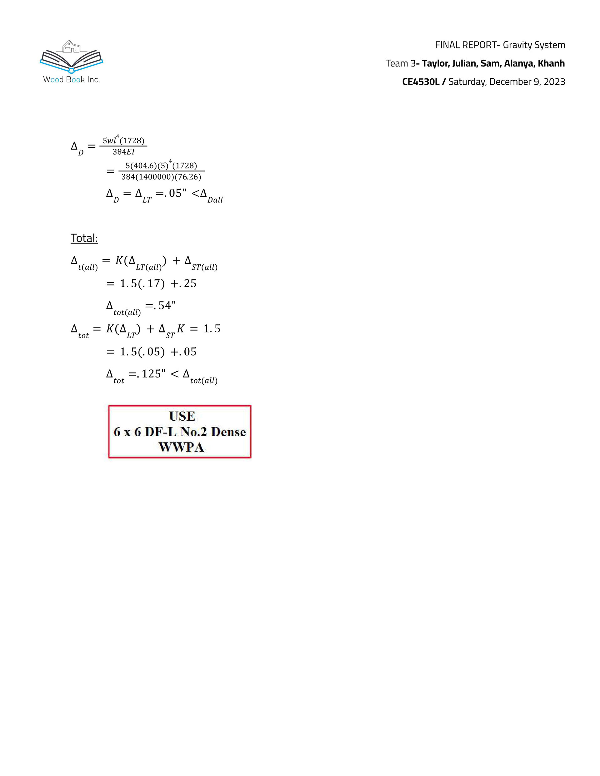
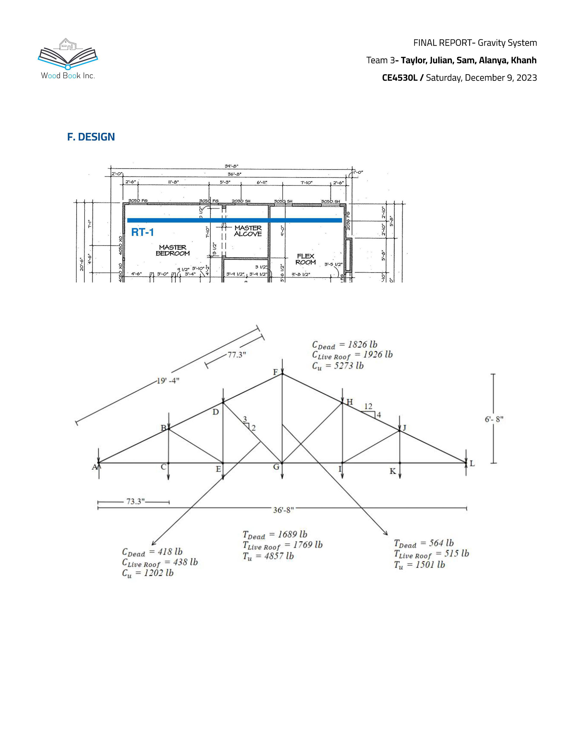
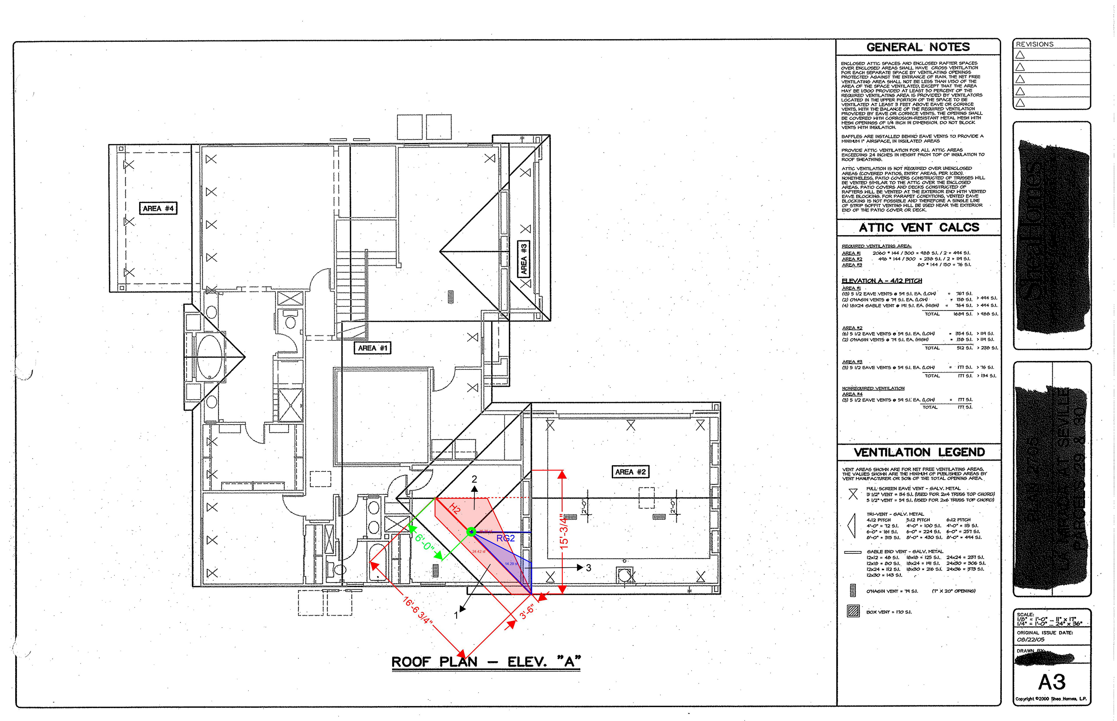
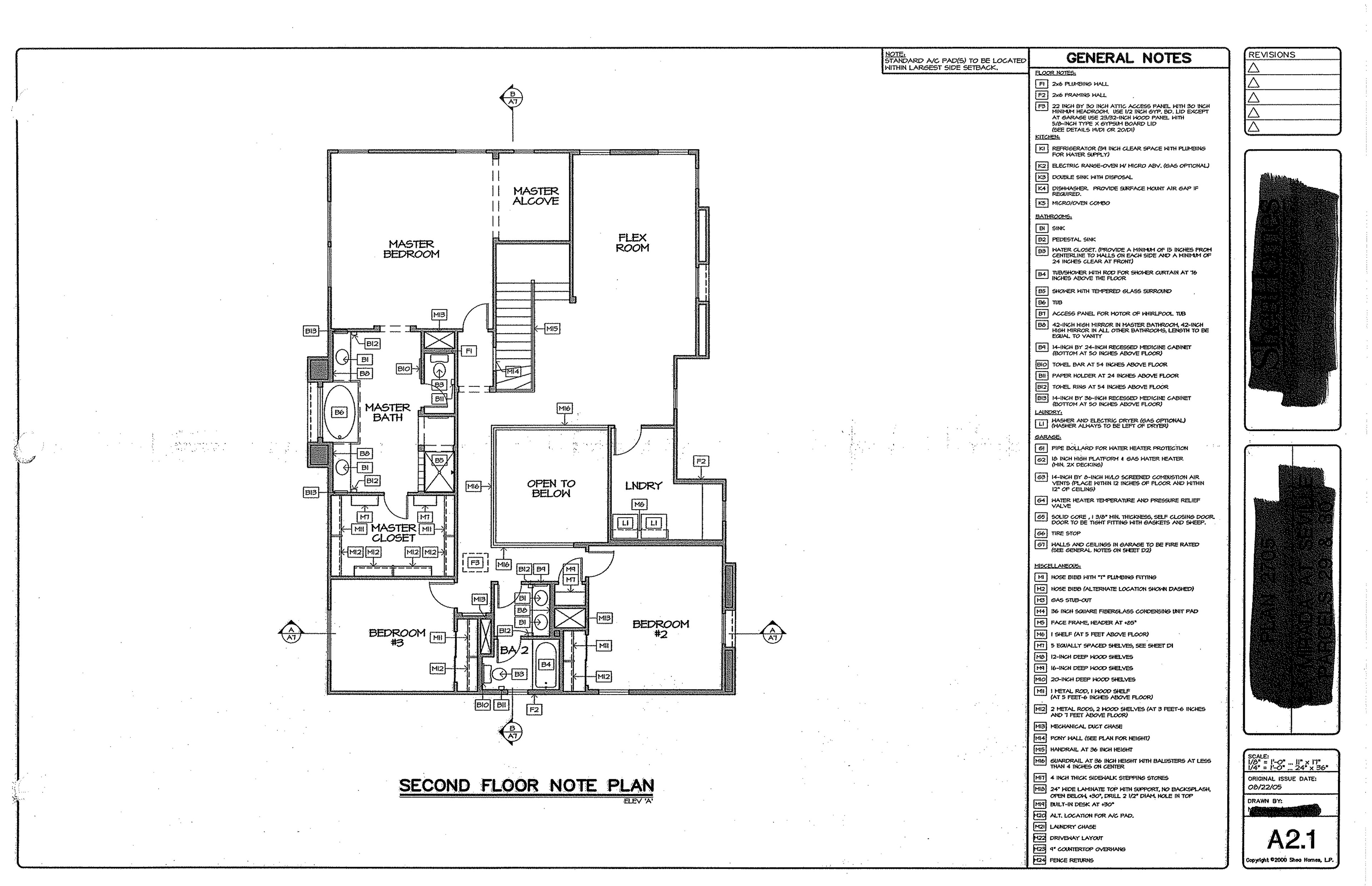
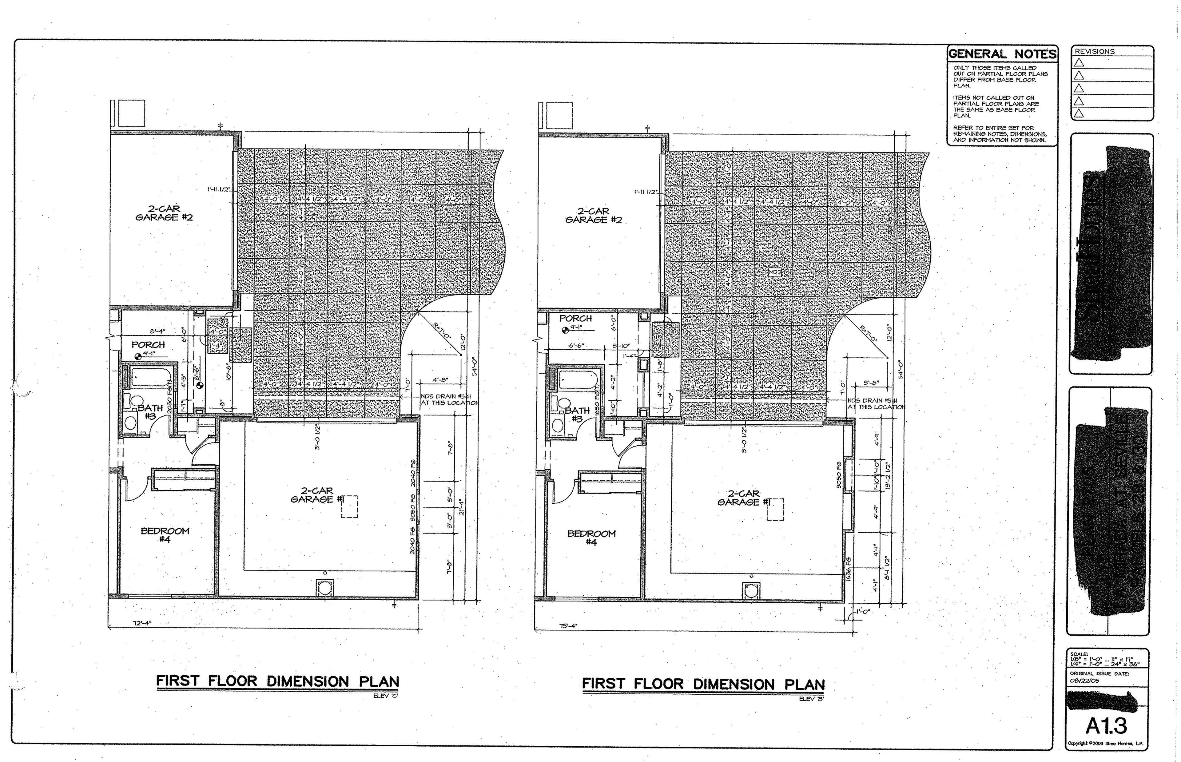
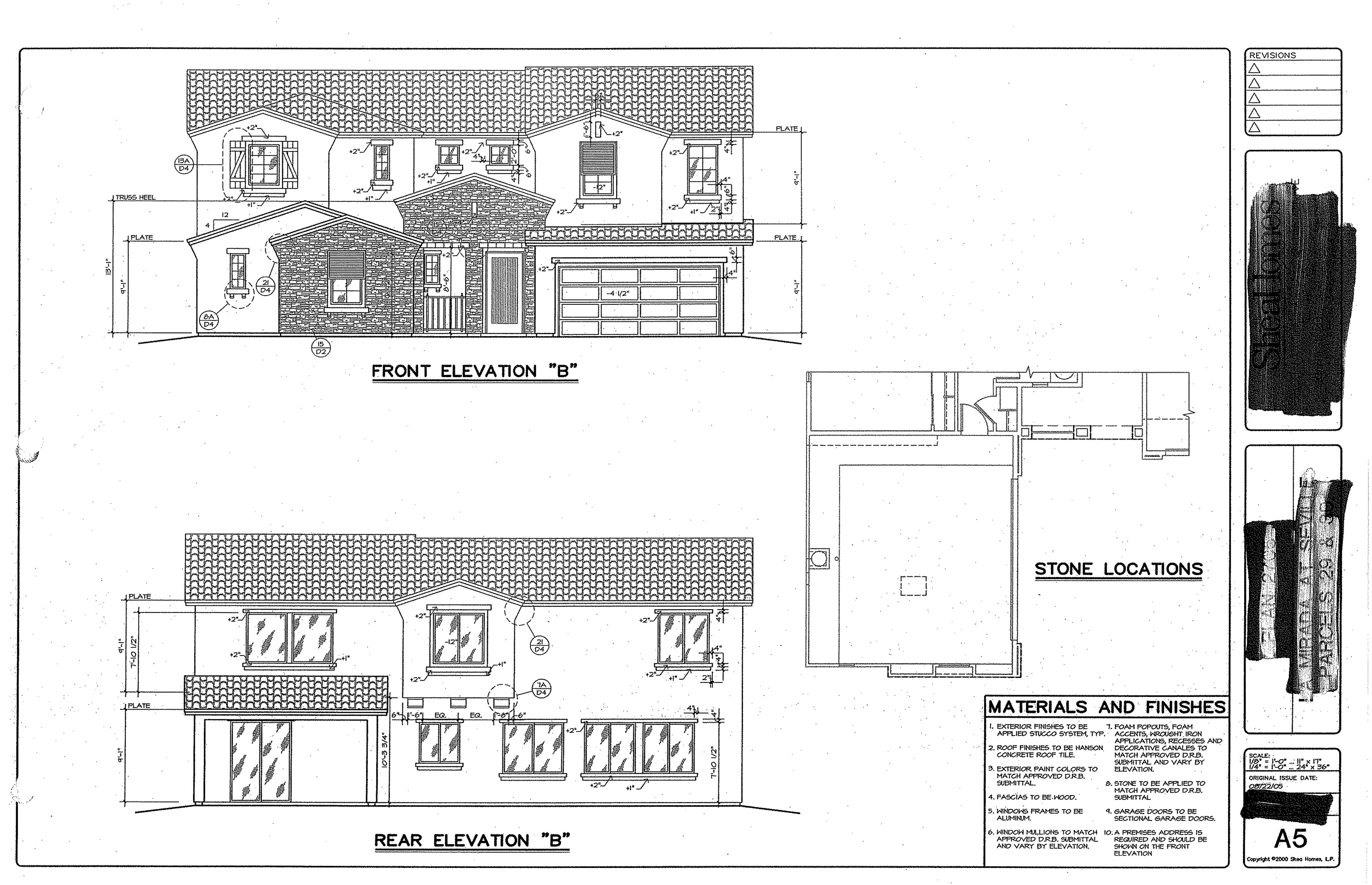
Design and analysis of the Lateral & Gravity Systems using NDS, NDS Supplement, SDPWS, ASCE7-16, and ASCE7-16 Commentary